Saturday, November 12, 2022

A Resource for People Who Love Historic American Homes

If you are reading this, then like me, you probably love old homes and spend way too many hours poring over house plans. I started this store, and I'm starting this new blog, so that I can share that love with you all. Here you will find a growing collection of detailed, measured drawings of beautiful old homes that encompass the entire range of American styles.

Historic American Homes

Historic American Homes Colonial Style house plans
The Salem-Towne House  - 1796

From Colonial homes... 

Historic American Homes midcentury moder house plans
Marcel Breur's House in a Garden - 1948

To Mid-Century Modern...

Historic American Homes Victorian Style house plans
Trocadero Inn, San Francisco - 1860s

 

And everything in between!

 

Detailed house plans in a range of styles

Although I've just shared with you lovely photos in different styles, I should mention that the focus of my store is not on photos, but on highly detailed and accurate drawings of these homes, of which there are a few examples below.

Why drawings? Because, as the architect Mies van der Rohe said, "God is in the details." It's in the little things, the proportion of a window, the height of a ceiling, the profile of a window casing, that we find the essence of these styles. What makes a Carpenter Gothic home different than a Colonial style home? It's in the details. And these detailed drawings, the best in the vast collection of the Historic American Building Survey, capture those differences.

Historic American Homes midcentury modern house plans
Mies van der Rohe's Farnsworth House - 1951
Historic American Homes modern Style house plans
Construction details of the Farnsworth House

If your purpose is to restore an old home and you want to learn more about the style, this is the place for you. If your goal is to build a new home that reflects a historical style, again this is the place for you. 

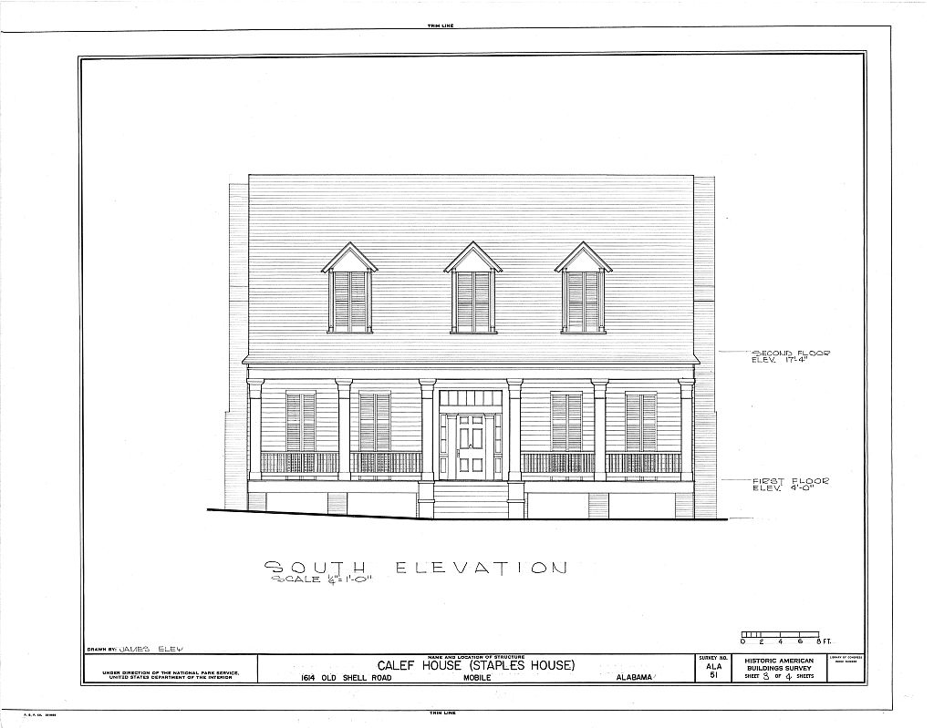
Historic American Homes Southern Style house plans
Calef House - 1852 - a classic southern style house

And if you simply love a well crafted set of architectural house plans, this is definitely the place for you!

Historic American Homes southern Style house plans
Calef House, with its broad and welcoming porch

 

So, come on by and join the fun. Feel free to browse. And if you can't resist, go home with some beautiful house plans!

 

 

 

 

 


No comments:

Post a Comment